山东佳星电气有限公司
全国服务热线:135 6122 0708
传真:0635-2114545
Q Q : 1600439767
邮箱:1600439767 @163.com
地址:山东聊城嘉明工业园
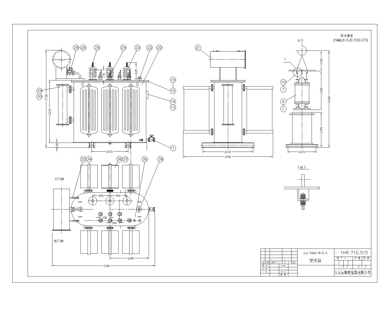
S11-5000/35/0.4油浸式变压器技术参数

S11-5000/35/0.4油浸式电力变压器技术参数:
电压比:35kv/0.4kv
阻抗电压:6.5%
空载损耗:4200W
空载电流:0.6%
负载损耗:48770W
外形尺寸mm(长*宽*高):3300*2840*3700
油重:3100kg
器身吊重:6300kg
总重:11750kg
设计方案会不断优化,以上数据仅供参考。订货时请以技术协议为准。
山东昊瑞变压器有限公司技术服务热线:199 6353 2201
-
1运行中的电力变压器怎么进行…
2019-02-15
一、变压器的额定运行方式1.变压器电压变化的允许范围当电压低于变压器的额定电压时,对变压器没有大的影响,…
-
1SZ11-20000/35/10.5有载调压…
2018-09-08
SZ11-20000/35/10.5有载调压油浸式电力变压器技术参数:电压比:35kv/10.5kv阻抗电压:8%连接组别:YNd11
-
1SZ11-16000/35/10.5有载调压…
2018-09-08
SZ11-16000/35/10.5有载调压油浸式电力变压器技术参数:电压比:35kv/10.5kv阻抗电压:8%连接组别:YNd11
-
1SZ11-12500/35/10.5有载调压…
2018-09-08
SZ11-12500/35/10.5有载调压油浸式电力变压器技术参数:电压比:35kv/10.5kv阻抗电压:8%连接组别:YNd11
-
1S11-10000/35/10.5油浸式变压…
2018-09-08
S11-10000/35/10.5油浸式电力变压器技术参数:电压比:35kv/10.5kv阻抗电压:7.5%连接组别:YNd11
-
1SZ11-10000/35/10.5有载调压…
2018-09-08
SZ11-10000/35/10.5有载调压油浸式电力变压器技术参数:电压比:35kv/10.5kv阻抗电压:7.5%空载损耗:9280W
-
1油浸式变压器怎样转化为直流…
2019-01-18
油浸式变压器是一种良好地用电设备,对于油浸式变压器而言应该要充分地进行把握住相关地油浸式变压器的各种的…
-
1SZ11-8000/35/10.5有载调压油…
2018-09-08
SZ11-8000/35/10.5有载调压油浸式电力变压器技术参数:电压比:35kv/10.5kv阻抗电压:7.55%空载损耗:7880W
-
1要了解油浸式变压器哪些零部…
2019-01-14
油浸式变压器是我们十分熟悉地一种重要地用电设备,它提升着调整电路中的电压和电流地重要地作用,稳定着电路…
-
1我公司将科研技术和计算机相…
2018-06-20
我公司将多年来的科研成果与计算机技术相结合,开发使用了实用性很强的变压器设计软件,并已在超高压大容…
